




0.2 Acres Development Land in Building plot with full planning permission for Sale - £140,000
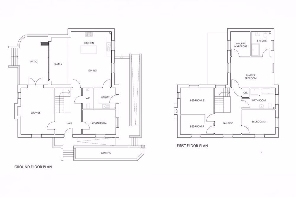
This plot of land is ideal for builders or developers seeking a ready-to-go project in West Norfolk, with planning permission granted for a 4 bedroom detached home. Planning Reference 25/00147/F
0.2 Acres Development Land in Building plot with full planning permission for Sale - £140,000
Description
This plot of land is ideal for builders or developers seeking a ready-to-go project in West Norfolk, with planning permission granted for a 4 bedroom detached home. Planning Reference 25/00147/F
Contact Agent
Smart Picks — Professionals Relevant to This Land
Based on this property's key features, here are the specialists you may want to consult as part of your due diligence: land agents, rural solicitors and planning consultants.

Land Agents
Essential for navigating the land market, finding buyers, and securing the best price.

Rural Solicitors
Significant investment (£140K+) requires legal expertise for conveyancing, title checks, and transaction security.

Planning Consultants
Planning-sensitive site needs expert guidance for applications and development strategy.
Location
Building plot with full planning permission